About the
Project
“A refined architectural solution for a long, narrow south-facing plot.”
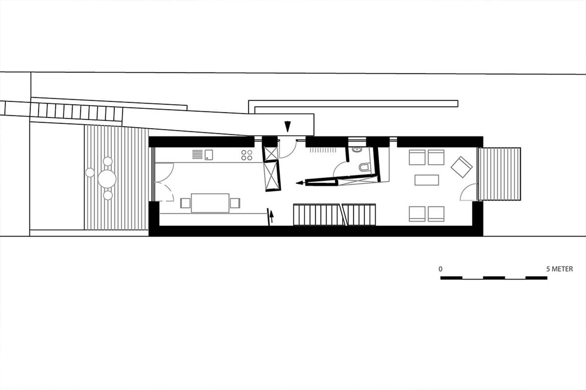
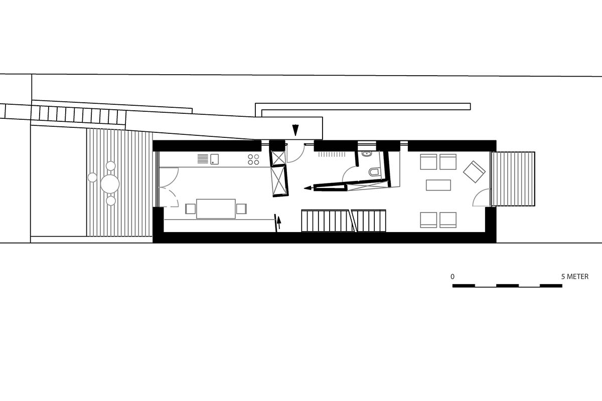
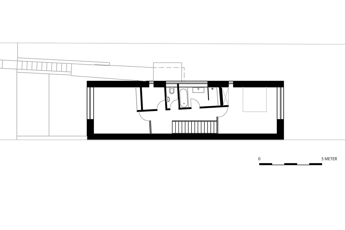
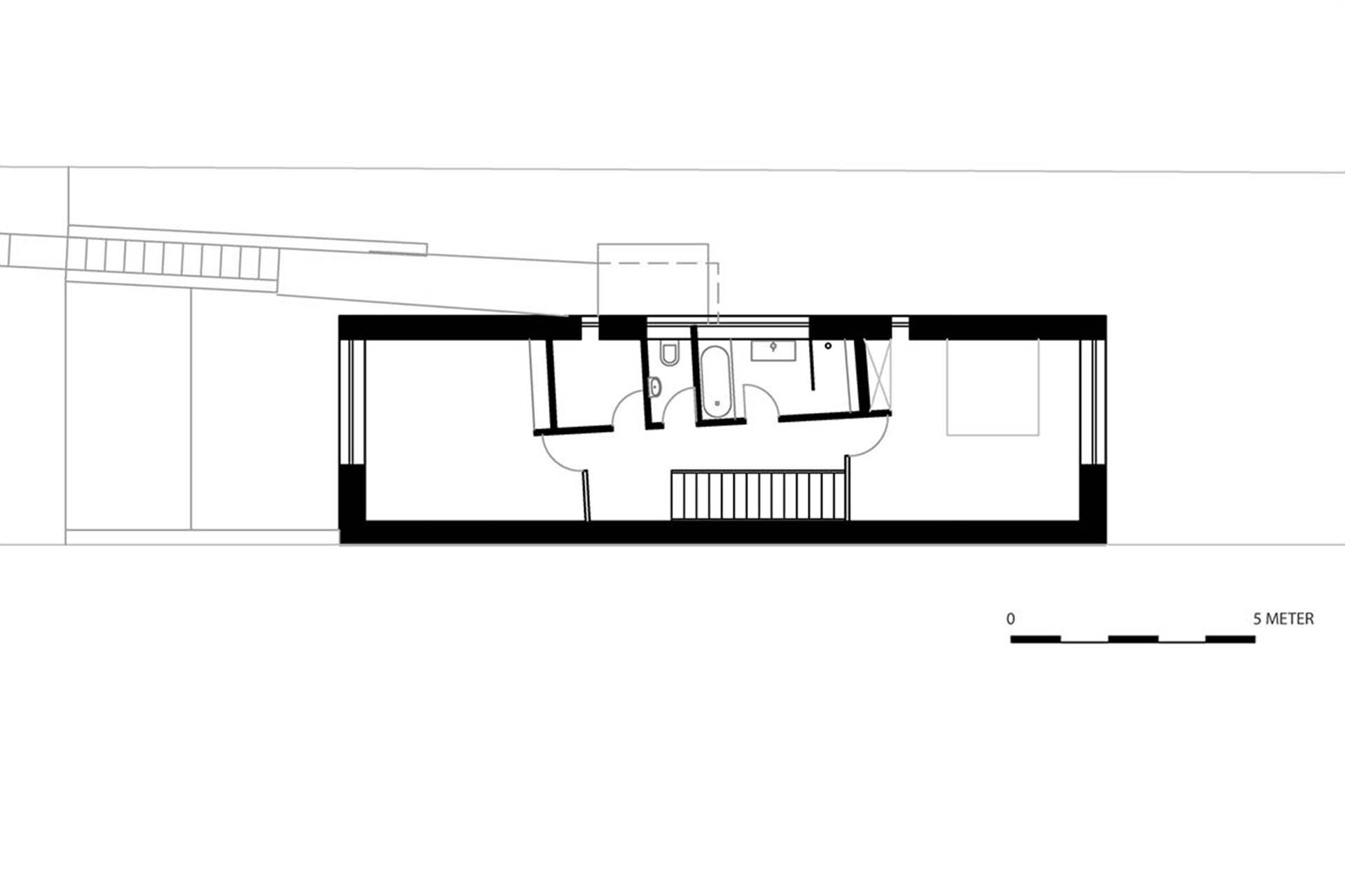
Set on an exceptionally narrow, elongated plot with a pronounced south-facing slope, the building is designed to fit within a width of just 4.6 m, demonstrating a precise and thoughtful response to the site constraints.
Set on an exceptionally narrow, elongated plot with a pronounced south-facing slope, the building is designed to fit within a width of just 4.6 m, demonstrating a precise and thoughtful response to the site constraints.
Info
-
Clientprivate
-
LocationVienna, Austria
-
Project delivery phase2005 - 2006
-
Scope of WorkProject Tenders
-
Architectjungerbeer.at
The
Result
The concept of ‘linear-vertical living’ forms the core design principle, explored through carefully considered spatial arrangements, material choices, surface treatments, and the orchestration of natural light.
Anchored by a central three-story core, the building seamlessly organizes circulation, functions as a spatial filter, and mediates between distinct living zones.
The public living area on Level 1, enhanced by a terrace and balcony, creates a fluid connection between the private parents’ quarters on Level 2 and the children’s zone on Level 0, embodying both functional clarity and experiential richness.
Anchored by a central three-story core, the building seamlessly organizes circulation, functions as a spatial filter, and mediates between distinct living zones.
The public living area on Level 1, enhanced by a terrace and balcony, creates a fluid connection between the private parents’ quarters on Level 2 and the children’s zone on Level 0, embodying both functional clarity and experiential richness.